designing a way forward

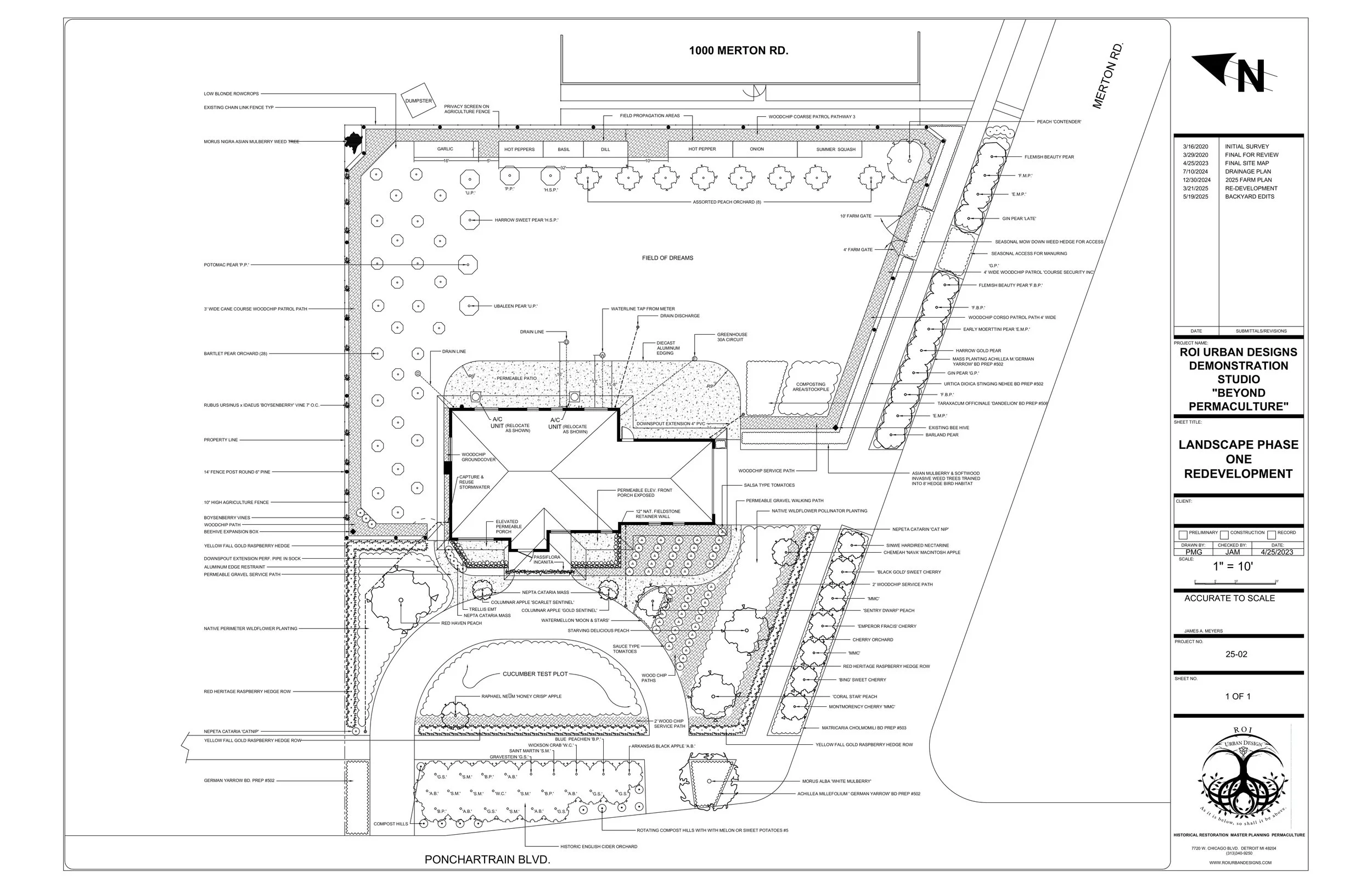
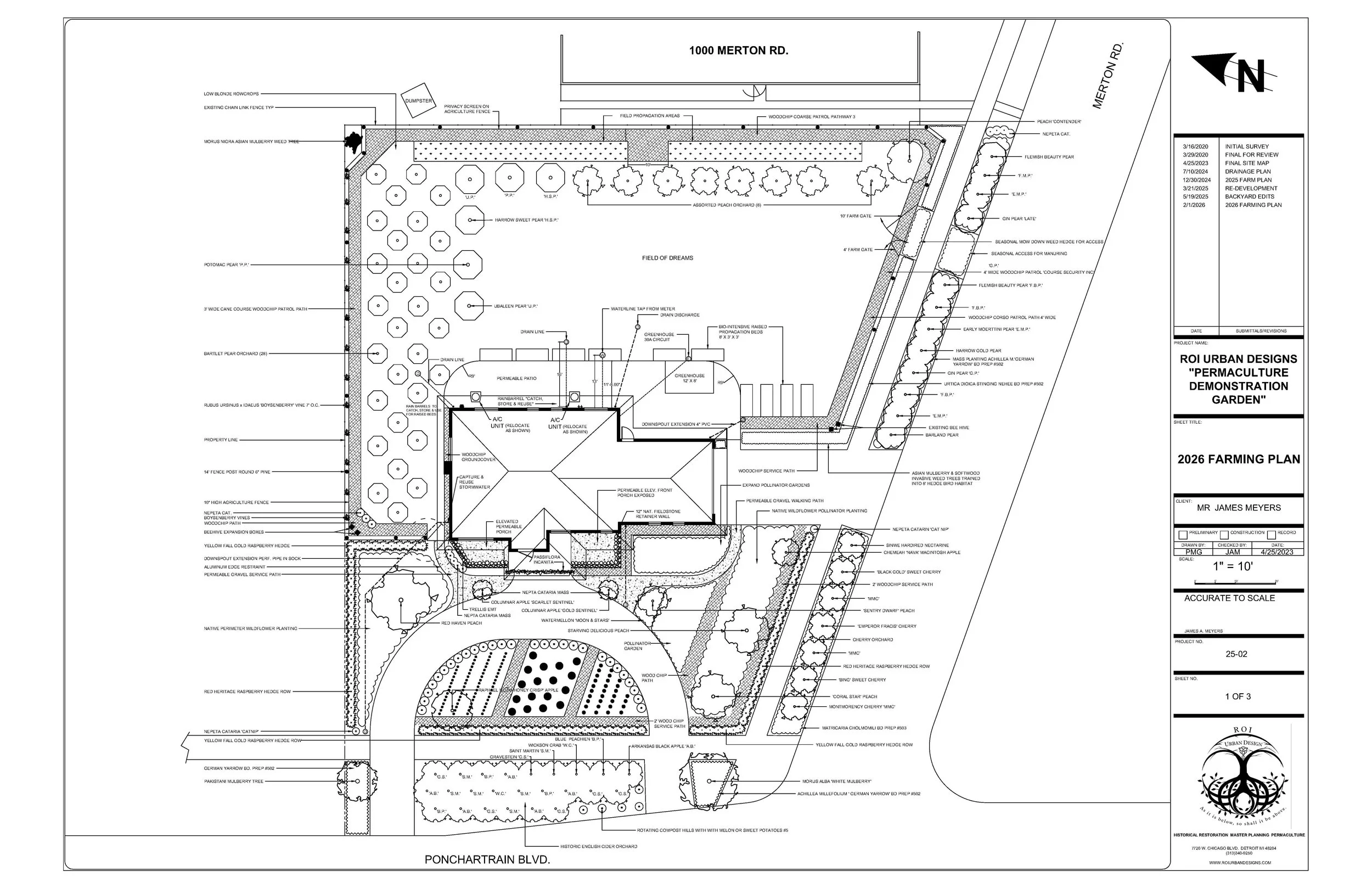
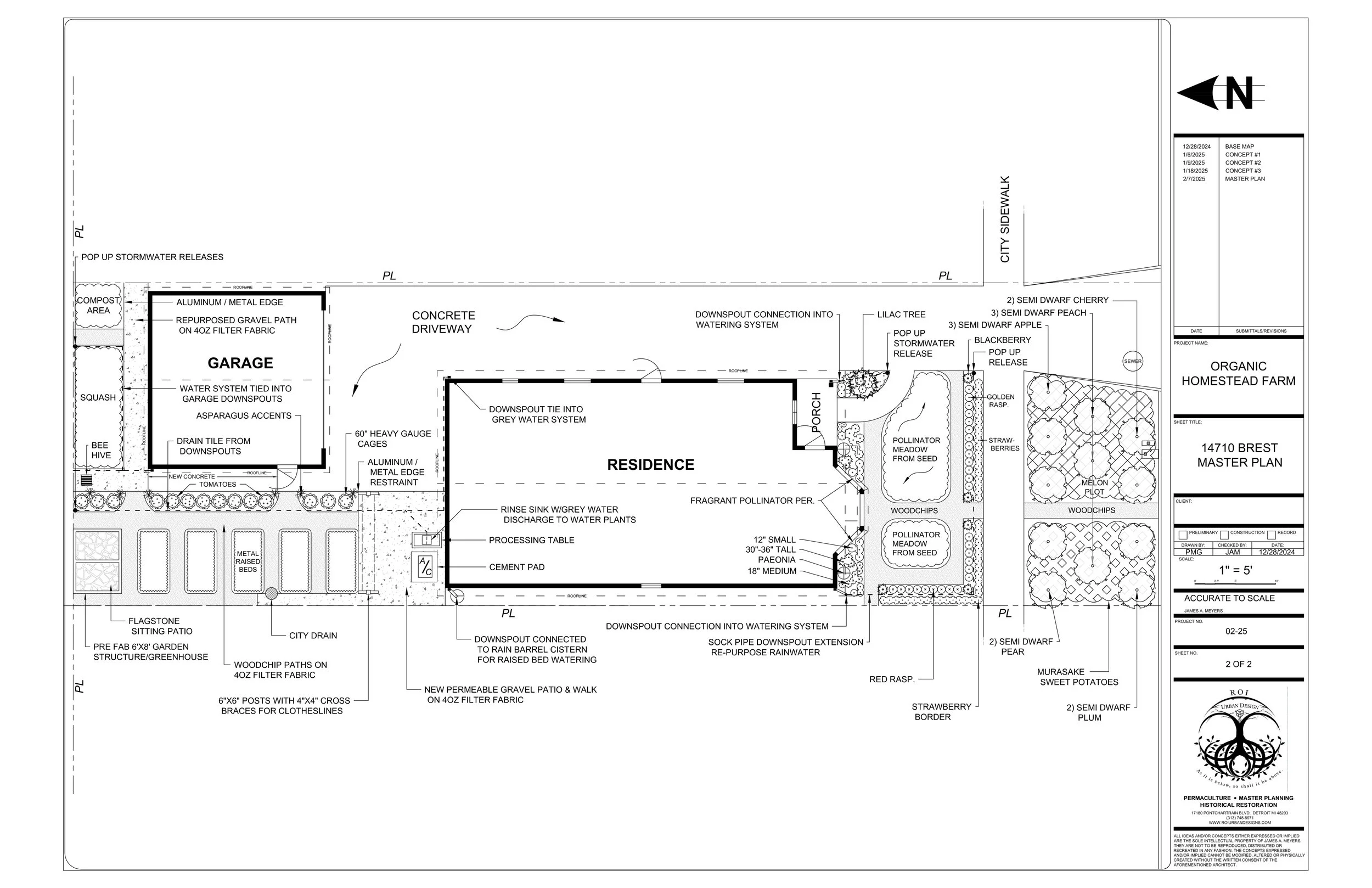
With the fossil fuel intense monoculture farming practices reaching the end of rapidly expanding throughout America, our thought was to use our education, master planning, and building experiences to create a new way forward. Design, specify-propose, and build sustainable Regenerative Biodynamic Homestead Farms & Residential Landscapes. Initially utilizing abandon Parks and forgotten landscapes, our goal was to all but eliminate the possibility of soil contamination generated by brained-washed fossil-fuel-based or industrial pollution. We design and have built, proven scientific systems. We offer complete master planning, implementation, and maintenance.

We can support and empower anyone anywhere to embark on a modern-day Homesteading journey of their own.

313-748-8971

Learn more about organic landscapes
 

Sustainable Homestead Farm, Park, and Commerical Property Designs

Home Page
contact us